+7(4822)750-110
Акции
Проекты
Отделка квартир
Ипотека
Коммерческие помещения
О Компании
Вакансии
Наша команда
Продажа новостроек:
+7(4822) 75 01 10
- г. Тверь
+7(4852) 90 05 05
- г. Ярославль
+7 926 264 11 11
- г. Зеленоград
Акции
Проекты
ЖК Volga Life
ЖК Медовый
Кольцово
ЖК Лесная мелодия 3
ЖК Зеленоградский
г. Ярославль, ЖК Гагарин
г. Ярославль, ЖК Адмирал
Povarovo Village
Отделка квартир
Ипотека
Коммерческие помещения
О Компании
Вакансии
Наша команда
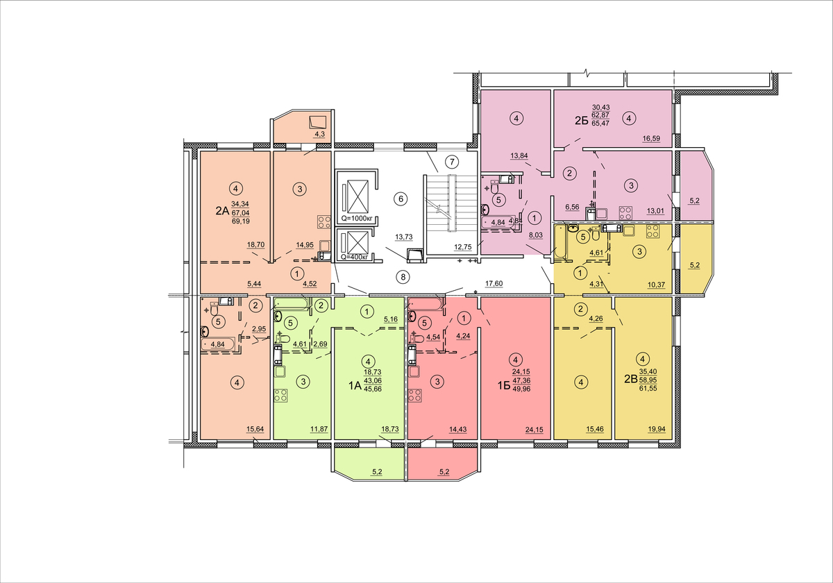
Купить двухкомнатную квартиру в Твери в ЖК Лесная мелодия
3D план
2D план
План этажа
Двухкомнатная квартира
Площадь:
65.47 м
2
Этаж:
17
Номер на площадке:
1
Дата сдачи:
Дом сдан
Квартира продается с ремонтом
Статус квартиры:
Не в продаже
PDF Брошюра
Калькулятор ипотеки
Узнать подробности у менеджера
По вопросам стоимости и наличия квартир обращайтесь к нашим менеджерам:
+7(4822)750-110
Перезвоните мне
Имя
Номер телефона
Сообщение
Очистить
Отправить